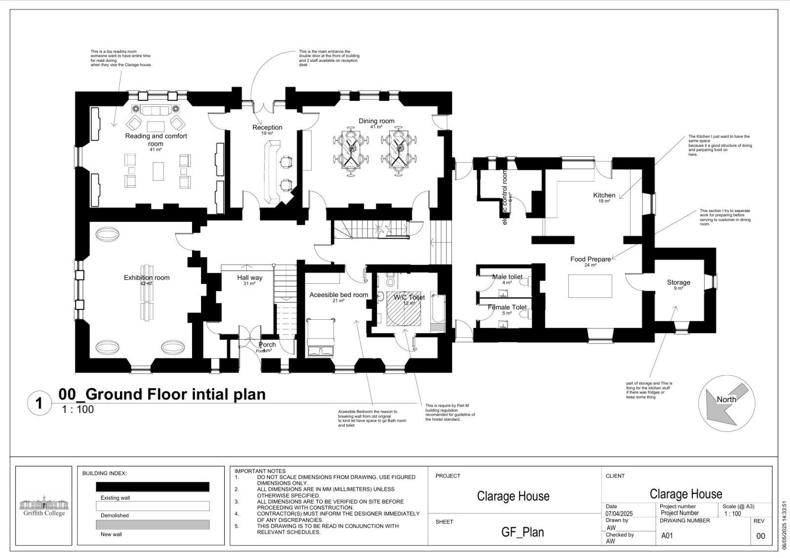
I re-imagined Claragh House, located in Ramelton, County Donegal, Ireland, into a modern hospitality destination that respects its historic stature while introducing contemporary functions. The concept focuses on creating an inclusive space that blends cultural heritage with sustainable and accessible design. My aim is to bring new life to the house, welcoming visitors for events, holidays, and special occasions. The design introduces a variety of bedroom types, restaurant and event areas, inclusive of accessible ground-floor accommodation. The rural setting and natural surroundings of Donegal played a significant role in shaping the design, with local materials and landscape views integrated into the interior experience. The overall concept reflects the charm of the Irish countryside while maintaining a sense of elegance and comfort. With a focus on experience and long-term use, Claragh House is reimagined as a place where history, nature, and hospitality come together for a diverse and modern audience.
Interior Architecture and Design





More Interior Architecture and Design

Alice Gemelli

Andressa Rodrigues

Ariana Gubencu

Arnold Przadka

Bilal Alahmar

Deirdre Kinlay

Dina Henriette Hines

Fiach O’Neill

Harim Dianiongi

Helene Johnsborg Lyngaas

Jasmine Allison

Kaja Myhr

Lorna Brophy

Megan Kiernan

Michelle Kotzurek

Ola Marcus Persson

Oskar Huseby

Shuchan Li

Vania Monrroy

Victoria Knoph
