] Graduates Fashion Design Film & TV Production Interior Architecture and Design Interior Architecture Photographic Media Graphic Communication Design Previous Years

Interior Architecture

Silje Helen Lorentzen
[ LEVEL eight ]

Silje Helen Lorentzen’s Portrait

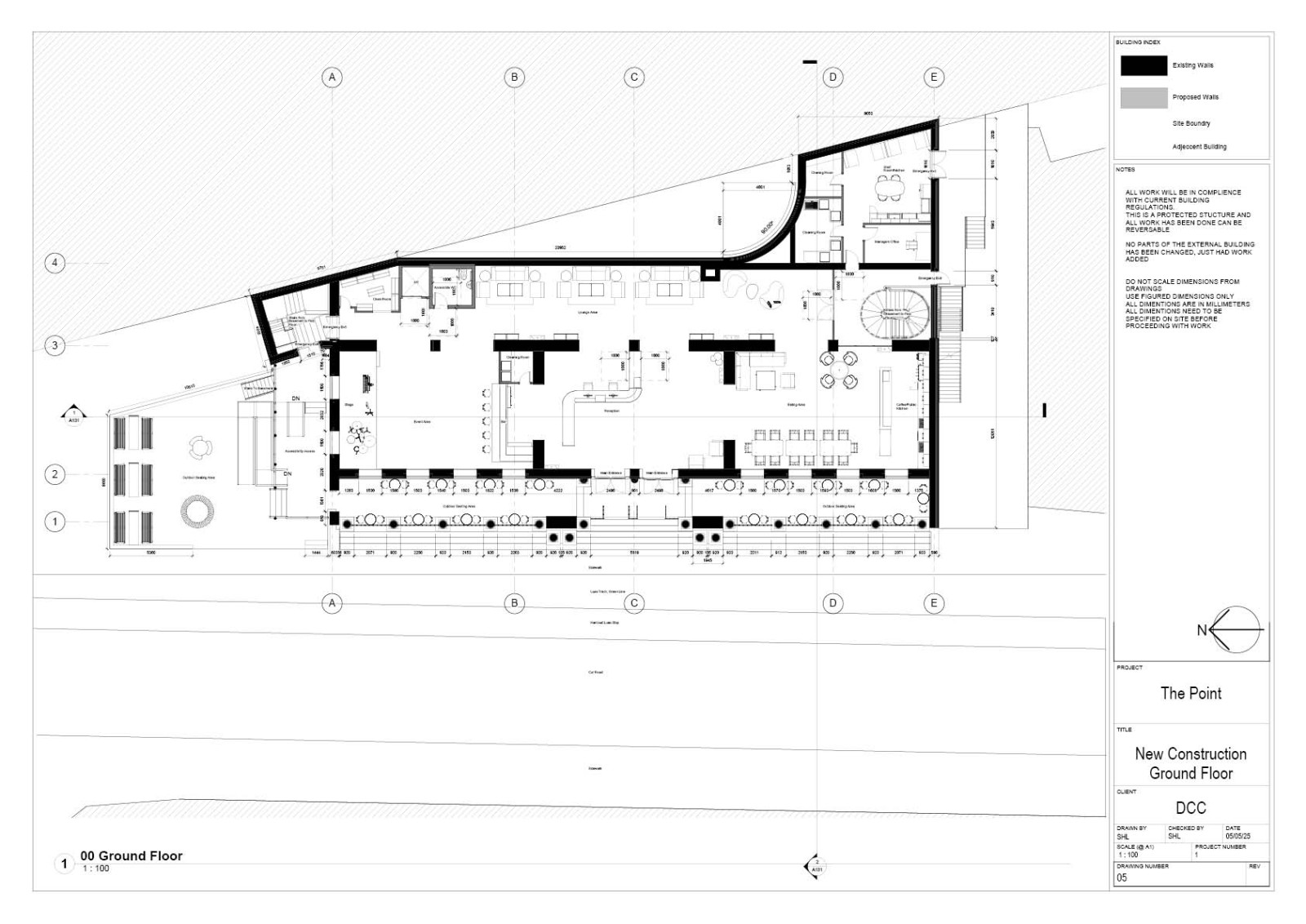
For this project I wanted to create a central, inclusive space for Dublin students, by transforming the old railway station into a Student Union called “The Point”. Situated in an easily accessible location, it aims to serve as a welcoming, social gathering place for students from all walks of life. The concept behind the design was inspired by the building’s history, symbolizing the diverse journey people take, each with unique goals, but all heading in the same direction. The building will feature a variety of student-focused facilities, ensuring both functionality and accessibility. Emphasizing on sustainability, the project uses raw and renewable materials that creates a calming feeling and aims to create long-lasting spaces that are both practical, relaxing and enjoyable. “The Point” will be a vibrant, academic hub providing a balance of study areas, relaxation spots, activities/events, student resources and any support necessary for the students’ academic and personal growth.

More Interior Architecture

Griffith College Logo